Quelques nouvelles du front.
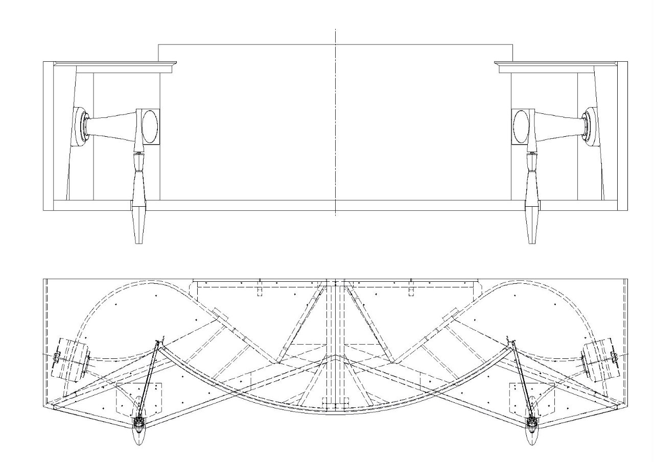
Toujours dans la numérisation de toutes les pièces composant le Paragon d'après les plans d'origine.
Le travail est titanesque avec environ une centaine de plans à traiter pour plus de 200 pièces au total (toutes les équerres de fixation sont également présentes sur les plans)
Si on ajoute à ça les côtes en pouces à convertir, les vues à l'américaine (inversée) et les vues d'ensemble approximative où il faut un peu tâtonner pour trouver la position de chaque pièce, je vous laisse imaginer le temps passé !
Mais bon, j'arrive au bout, plus des 2/3 de réalisé. Encore quelques heures et ça sera bon
Voici déjà un aperçu du résultat:

- paragon2.jpg (59.07 Kio) Vu 2325 fois

- paragon.jpg (118.42 Kio) Vu 2325 fois